dierenkliniek met appartementen | Rijen
In dienst van luijten|smeulders|architecten nu Gls architectuur|interieur
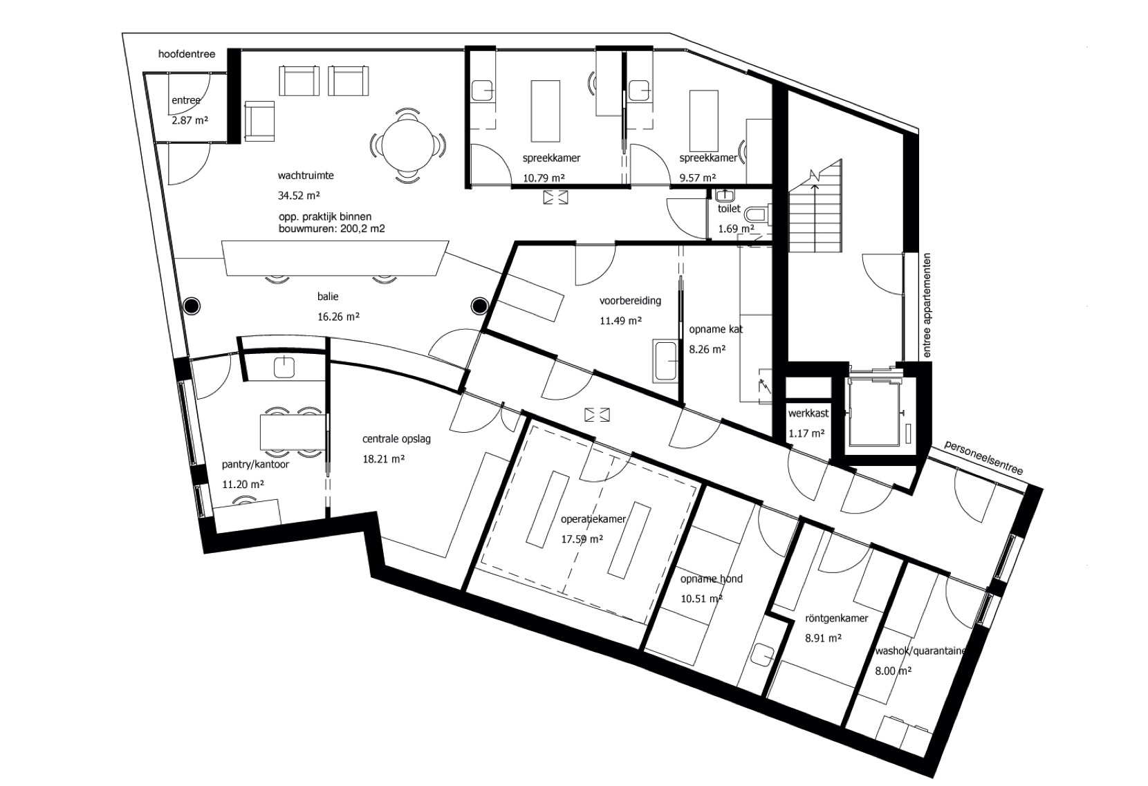
De nieuwbouw voor de dierenkliniek is gelegen aan de hoofdstraat in Rijen. Het plan is vormgegeven als een sculptuur van twee in elkaar gedraaide massa’s in baksteen en hout. Het sluit hierbij in hoogte aan bij de bestaande bebouwing aan de hoofdstraat, maar zoekt in architectuur aansluiting bij de er achter liggende inbreidingswijk en vormt met de naast gelegen woning zo de entree vanuit de hoofdstraat naar dit woongebied.
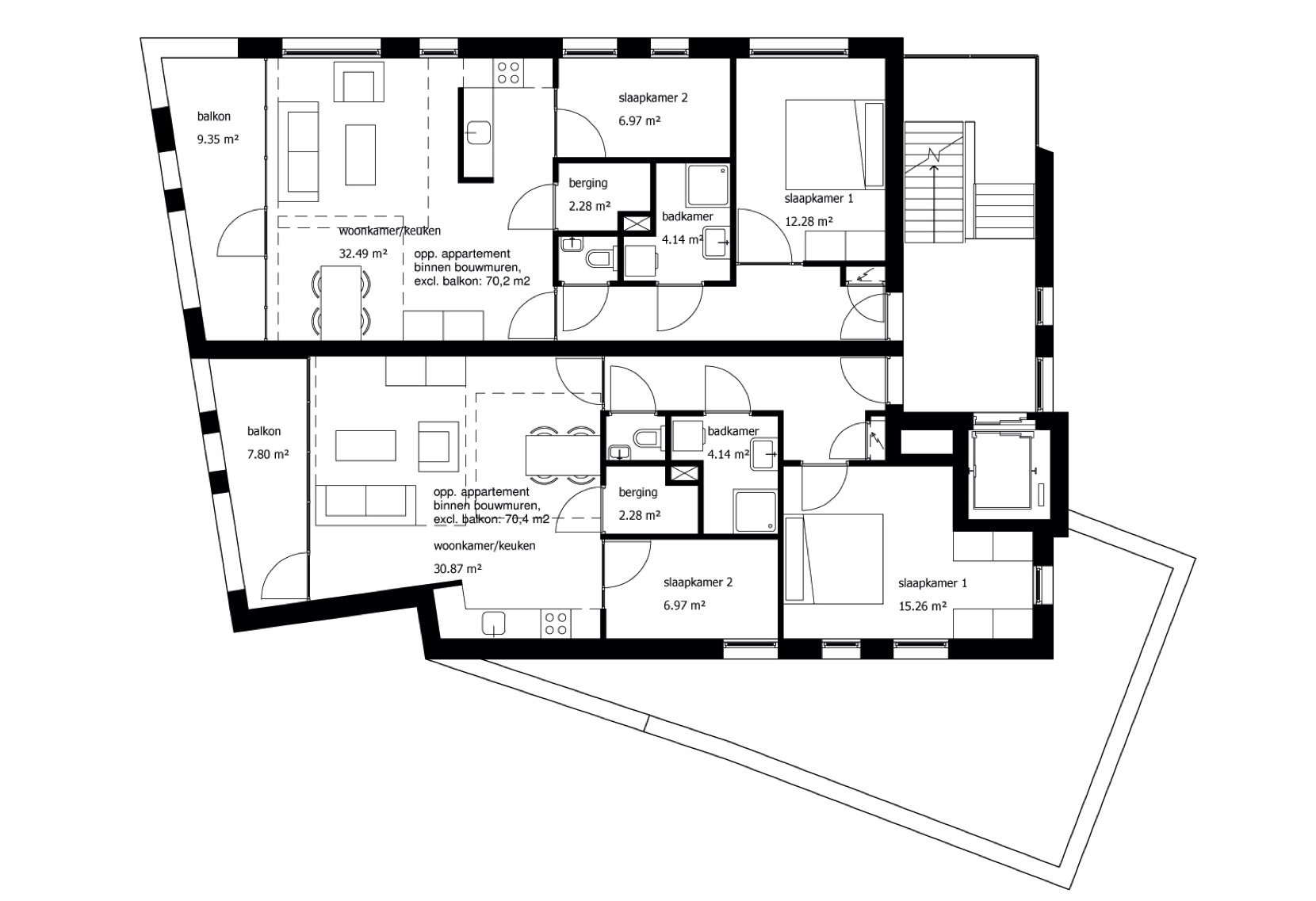
De dierenkliniek bevindt zich op de begane grond en op de twee bovenliggende verdiepingen liggen in totaal vier huurappartementen.
Ik heb dit project (mede) ontworpen en getekend/gevisualiseerd tot en met het definitief ontwerp.












