ikc Grebbe | Tilburg
In dienst van luijten|smeulders|architecten nu Gls architectuur|interieur
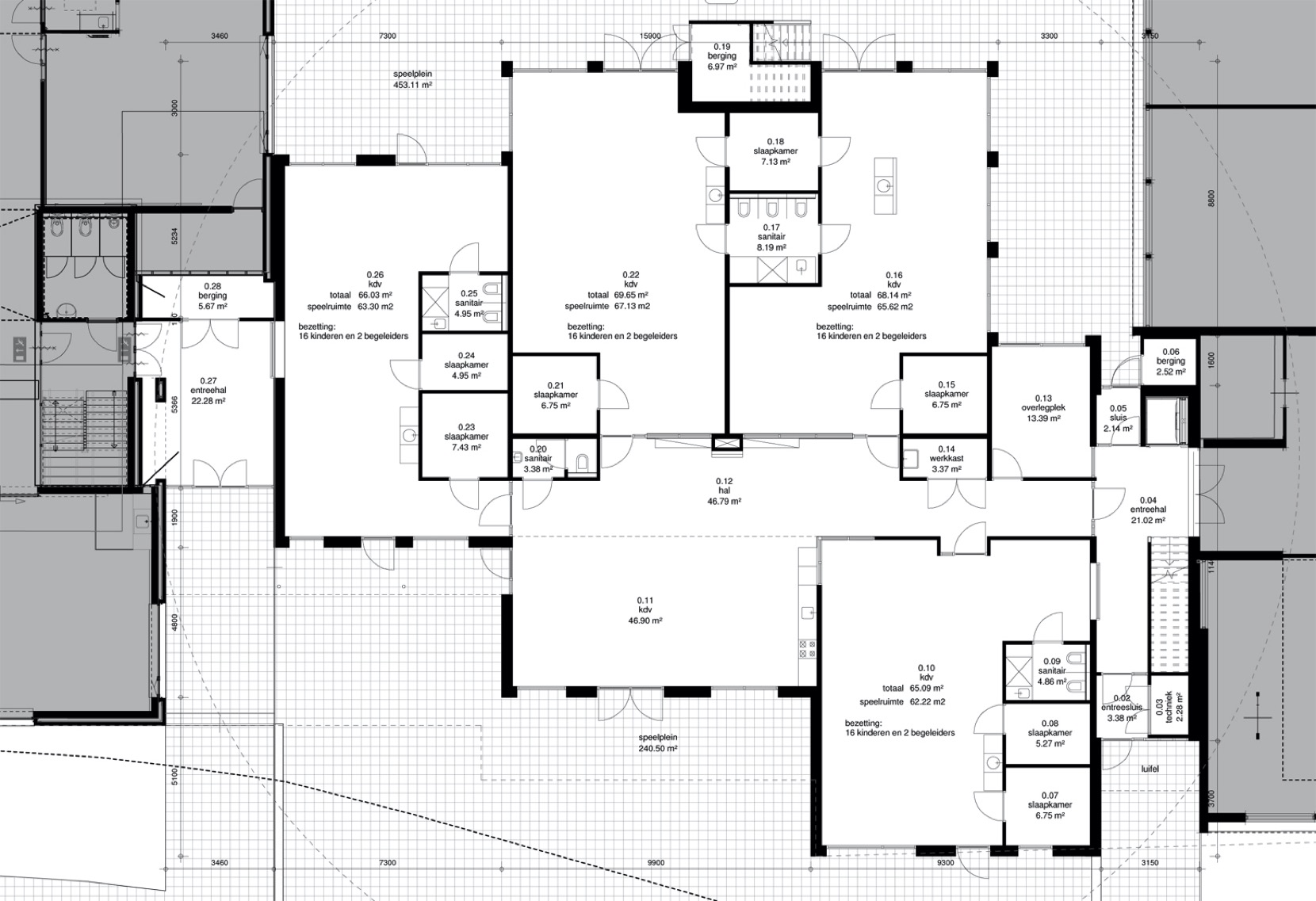
De nieuwbouw voor ikc Grebbe ligt tussen twee basisscholen in de wijk de Blaak in Tilburg. In reactie op de lessenaarskappen die in beide scholen veelvuldig voorkomen is voor het nieuwe ikc gekozen voor een kapvorm die enerzijds de aansluiting zoekt bij beide scholen, maar door de vorm en richting het ikc ook een herkenbare positie verschaft.
De ‘huisjes’ zijn in hun vorm archetypisch voor hoe een kind een huis tekent en refereren daarbij aan de huiselijke sfeer die het ikc voor de kinderen wil uitstralen.
Ik heb dit project (mede) ontworpen en getekend/gevisualiseerd tot en met het definitief ontwerp.
foto’s: Monique Groenen














