appartementen broeckgouw | Volendam
In dienst van luijten|smeulders|architecten nu Gls architectuur|interieur
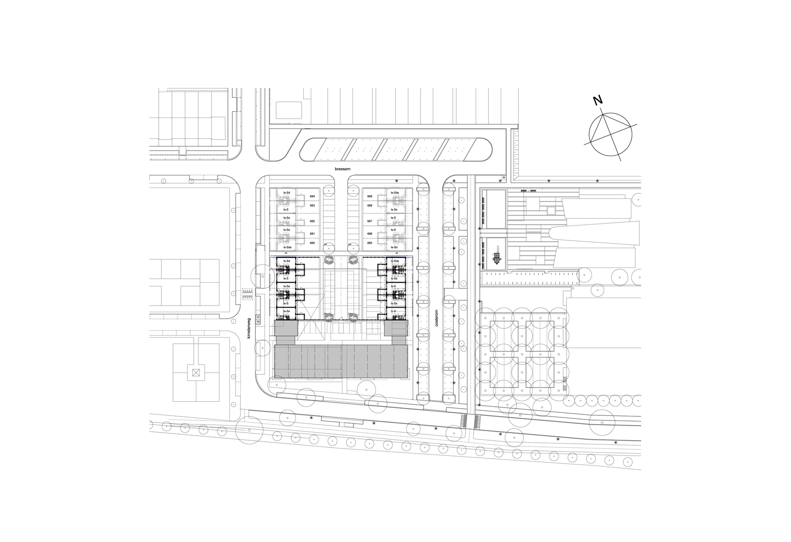
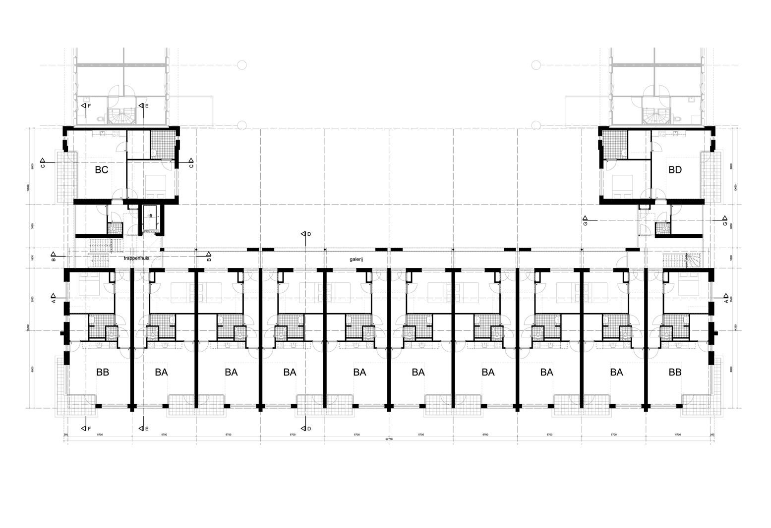
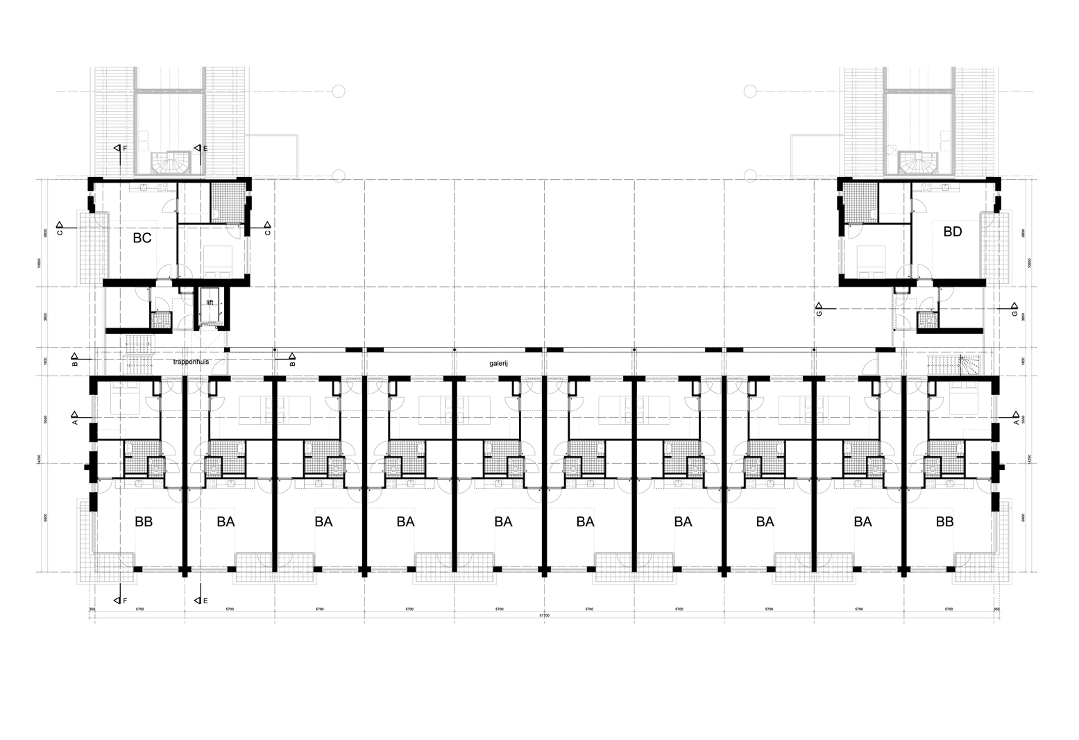
Voor woningbouwvereniging de Vooruitgang zijn in de wijk Broeckgouw in Volendam twintig grondgebonden huurwoningen en 30 huurappartementen gerealiseerd.
Zowel de grondgebonden woningen als het appartementengebouw zijn ontworpen in een voor deze wijk kenmerkende jaren ‘30 stijl met veel aandacht voor detail.
Uitdaging bij dit project was het grote aantal appartementen dat binnen een beperkte bouwenveloppe moest worden gerealiseerd. Door het beeld van de torenwoning uit fase 7 & 8 te hanteren als overgang is het gelukt om binnen de stijl van de wijk de appartementen direct te laten aansluiten op de grondgebonden woningen, waardoor het gelukt is dit hoge aantal ook daadwerkelijk te realiseren.
Ik heb dit project (mede) ontworpen en getekend/gevisualiseerd tot en met het definitief ontwerp.












