schuurwoning |Esbeek
In dienst van luijten|smeulders|architecten nu Gls architectuur|interieur
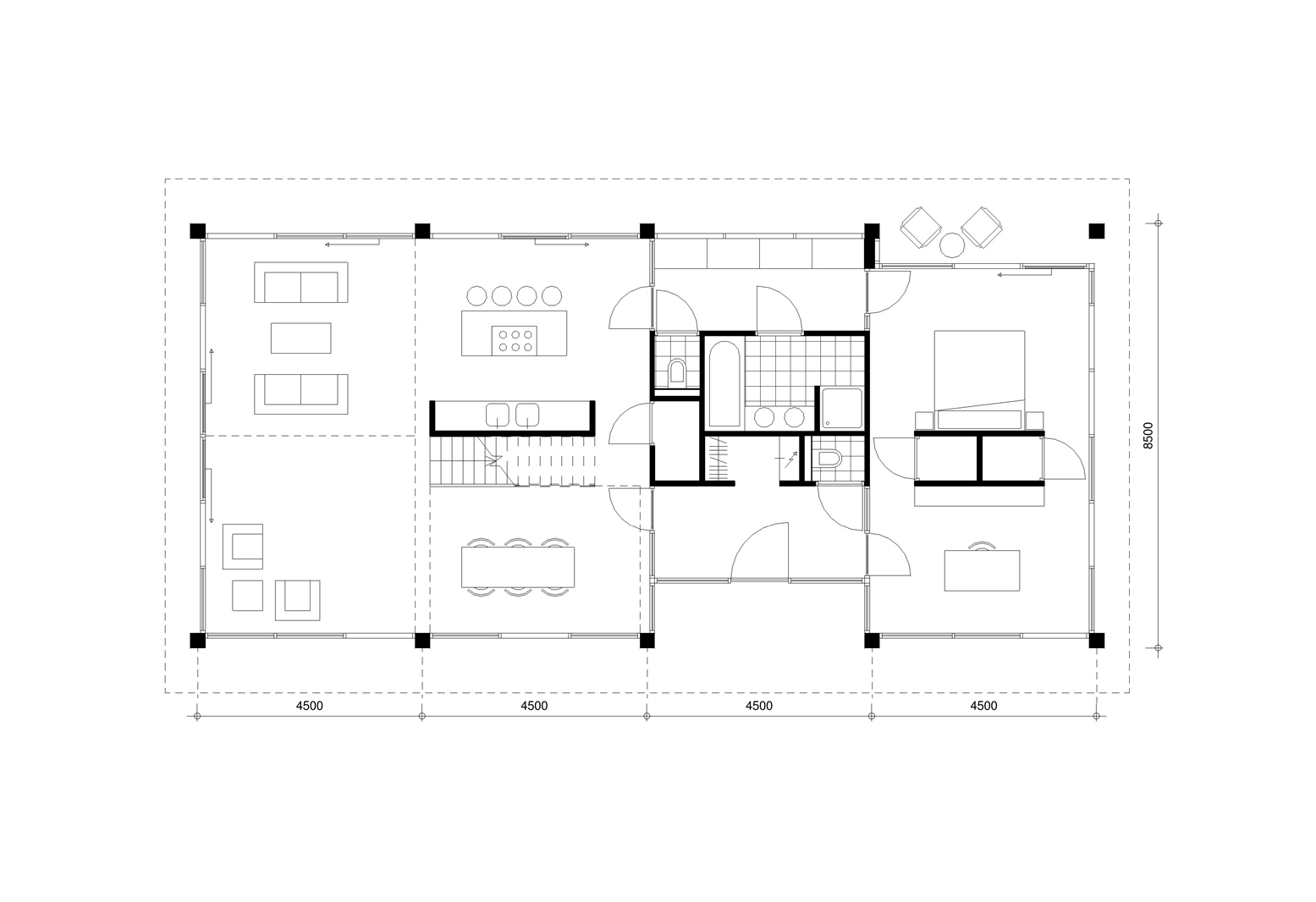
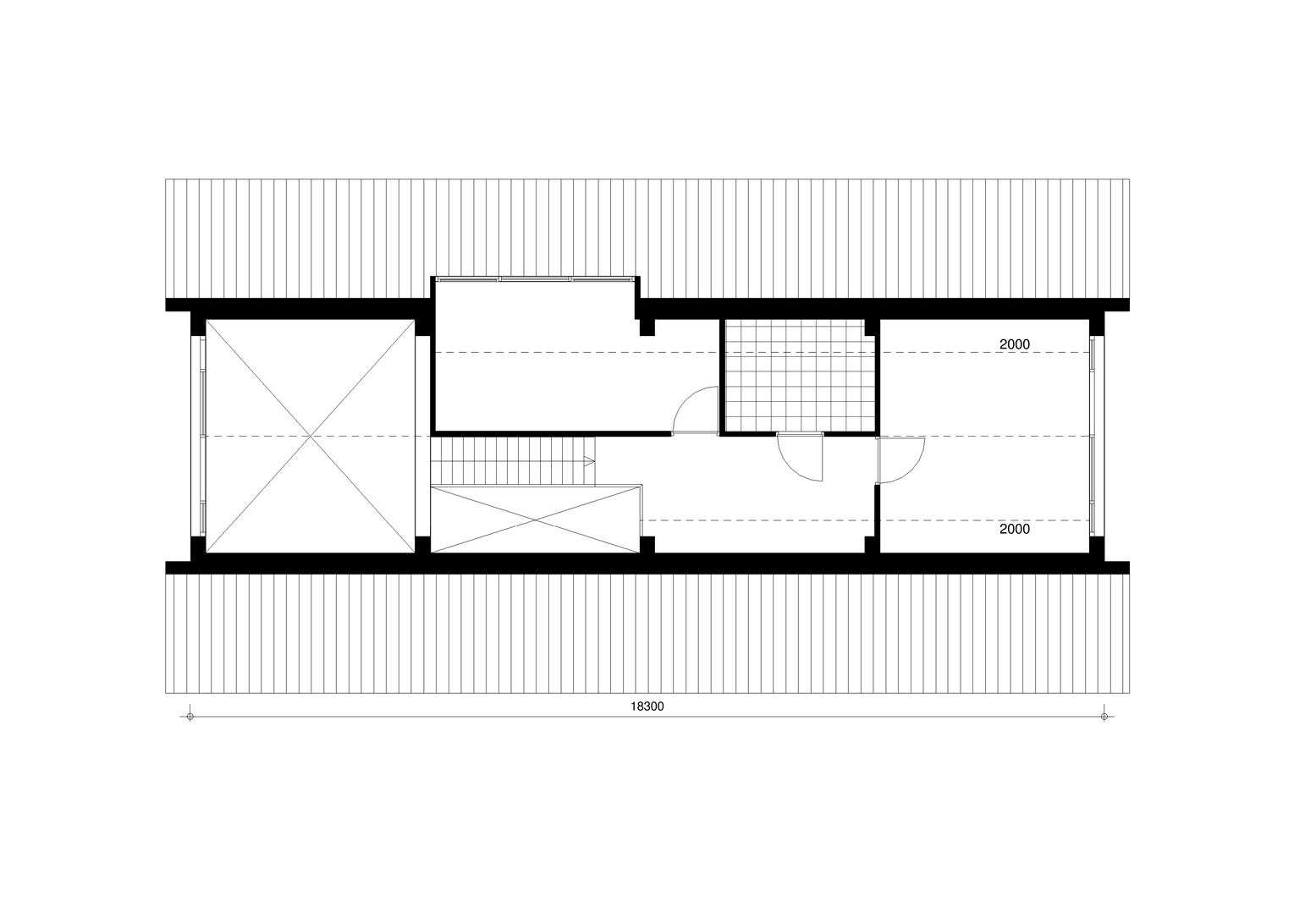
Voor landgoed de Utrecht in Esbeek is een beeldkwaliteitsplan ontwikkeld, dat het mogelijk moet maken om op het landgoed een aantal woningen te realiseren.
Dit ontwerp is een studie naar één van de type woningen die in het beeldkwaliteitsplan zijn opgenomen: de schuurwoning. Een woning, die refereert aan de klassieke kapschuur.
Ik heb dit project ontworpen en getekend/gevisualiseerd.






